Es galt ein Zentrum für angewandte Schönheit zu kontipieren. Das zu be bauende Grundstück befindet sich Am Saalehang, Merseburg und weißt ein größzügiges Flächenangebot als auch eine exponierte Nähe zur Saale auf.
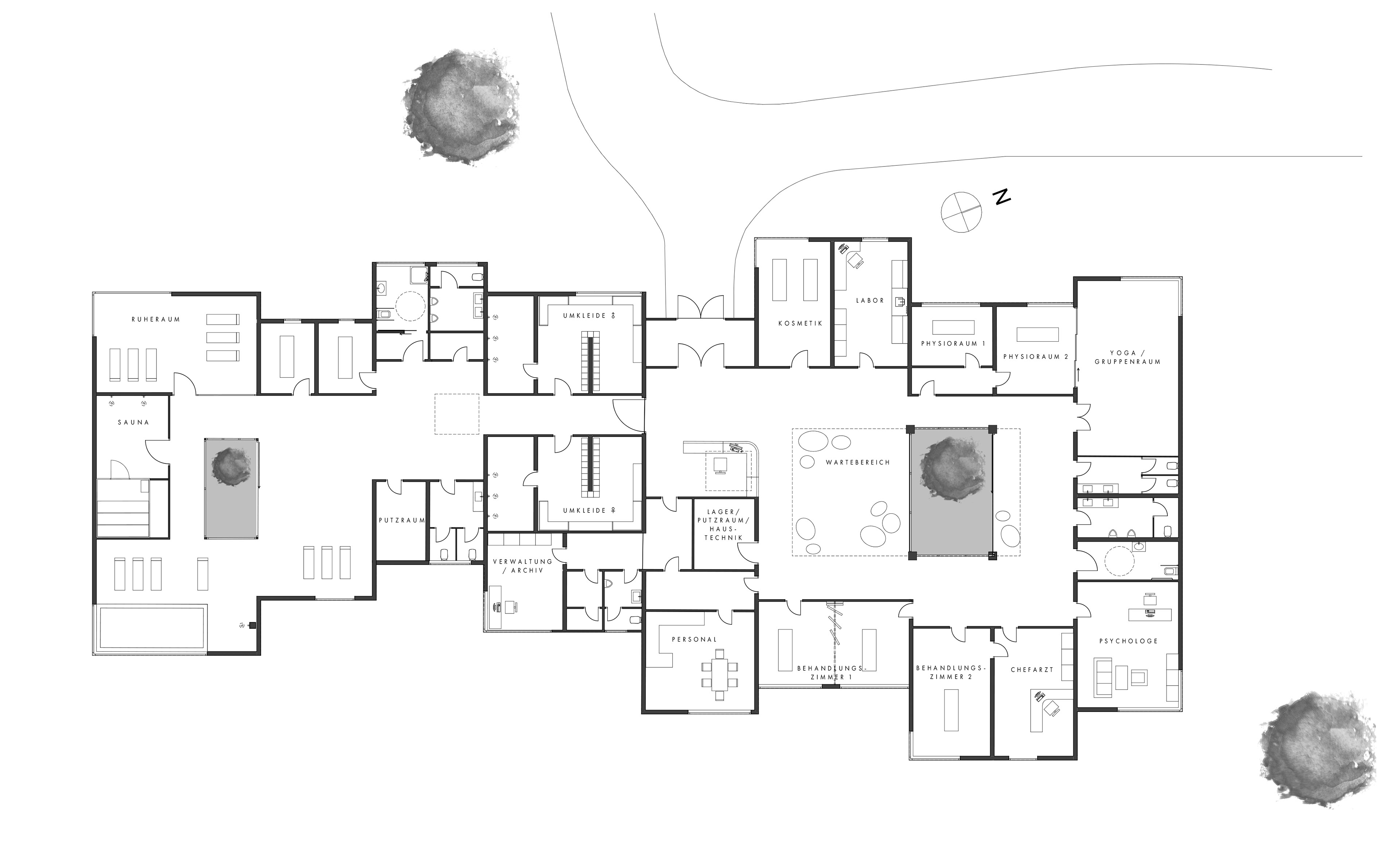
Um den Anforderungen gerecht zu werden entstand ein multifunktionales eingeschossiges Gebäude, dessen unterschiedlich verschobene Element die ebenso verschiedenen Nutzungen vereinen.
Das so entstehende Raumgefüge schafft sowohl von außen einen reizvollen Anblick, als auch von innen ein spannendes erleben der Räumlichkeiten.
Aufgebrochen wird diese aus Satteldächern entstehende Dachlandschaft durch  Atrien, welche die Räume mit Licht durchfluten und die Natur in das Gebäude transportieren.
Sowohl die Fassade als auch die Dachdeckung ist einheitlich in Beton gehalten, so erhält das Gebäude eine monolithische und homogene Anmutung.
Back to Top